Rendering of 6 Flintlock Road, Montvale, NJ
Elevation of 6 Flintlock Road, Montvale, NJ
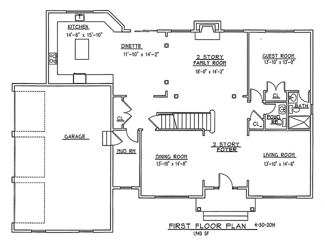
First Floor Plan of 6 Flintlock Road, Montvale, NJ
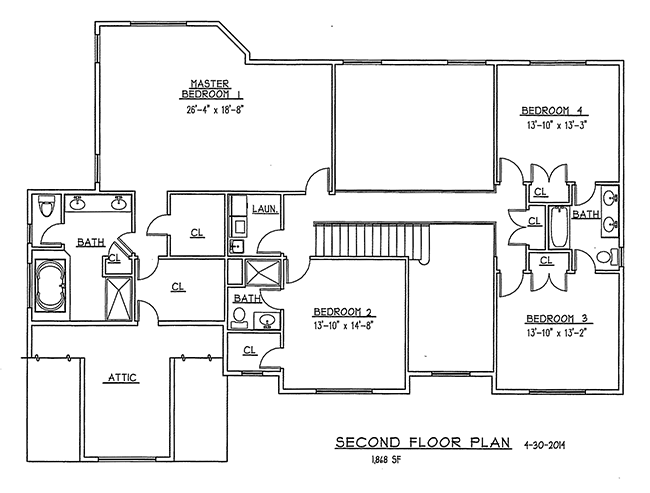
Second Floor Plan of 6 Flintlock Road, Montvale, NJ